鉄骨造亜鉛メッキ鋼板葺2階建(外観) 南西側、間口25m。(外観)
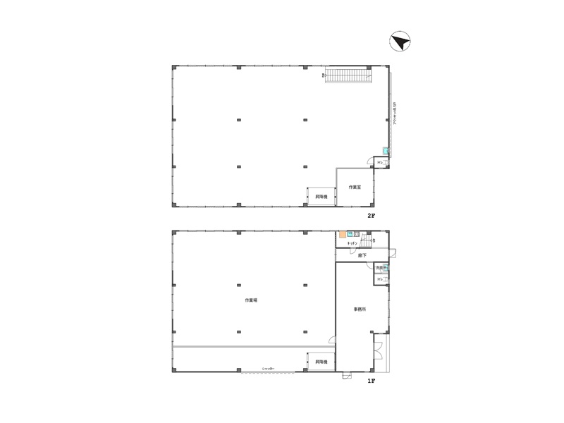
工場内に約50㎡の事務所スペースあり。(間取)
1階工場(内装)
荷物の上げ下ろしがしやすい高床式。(内装)
1階昇降機
1階 約50㎡の事務所スペース。(内装)
ビルトインエアコンあり。
火災受信器
階段下の流し台(内装)
1階トイレ(内装)
階段(内装)
2階工場(内装)
2階昇降機(内装)
昇降機(内装)
2階作業部屋(内装)
2階トイレ(内装)
工場の出入り口。南東側から撮影。(外観)
南西側、幅員8mの公道。(外観)
南東側、市川沿いを走る道路へのアプローチ。(周辺)
  • 価格9,500万円
  • 種別工場
所在地
兵庫県姫路市阿保  姫路市阿保
交通
JR山陽本線東姫路駅 徒歩20分
                  

物件詳細

築年月2002/10 新築/中古中古
面積 590m² 計測方式
バルコニー 向き 南西
建物階数 地上2階  部屋階数
建物構造 鉄骨造
間取内容
工場内に約50㎡の事務所スペースあり。
駐車場 空有 10台駐車可(※車種によります。) 取引態様 売主
引渡/入居時期 即時 現況 空家
地目 宅地 用途地域 準工業
都市計画 市街化区域 地勢 平坦
土地面積 500.81m² 土地面積計測方式 公簿
建ぺい率 60% 容積率 200%
土地権利 所有権 接道状況 一方
接道方向1 南西 接道間口1 25m
接道種別1 公道 接道幅員1 8.0m
周辺環境 ・セブンイレブン姫路阿保南店…徒歩5分 ・ローソン姫路阿保店…徒歩8分 ・ハローズ東姫路店…徒歩11分 ・ドラッグストアコスモス…徒歩12分 
設備・条件 給湯 トイレ専用 エアコン プロパンガス 公営水道 排水下水 駐車場有
工場内に事務所スペースあり。昇降機あり。大規模集客施設制限地区。
物件番号 20260113/0108-848・849
自社物 状態 売出中
特記事項 姫路バイパス「市川ランプ」車で5分
JR山陽本線「東姫路」駅徒歩20分
駐車約10台可(※車種によります)

★鉄骨造2階建

★工場内に約50㎡の事務所スペースあり♪

★昇降機あり♪

★幅員8mの公道に接面25m♪

★ひめじバイパス「市川ランプ」車で5分♪

★コンビニ徒歩5分♪

★車10階駐車可♪(※車種によります。)

お問い合わせお待ちしております。

 

姫路市・たつの市・太子町で
新築戸建、中古戸建、マンションをお探しの際は
井田産業へお気軽にお問い合わせください。
住替えや相続での資産の売却での相談も承っております。

※物件掲載内容と現況に相違がある場合は現況を優先と致します。

物件のお問い合わせ

[contact-form-7 404 "Not Found"]